aussenvisu_reduziert-Kopie

proposal citiy archiv kassel | bachelorthesis 2021 |  h-da, University of Applied Sciences

location

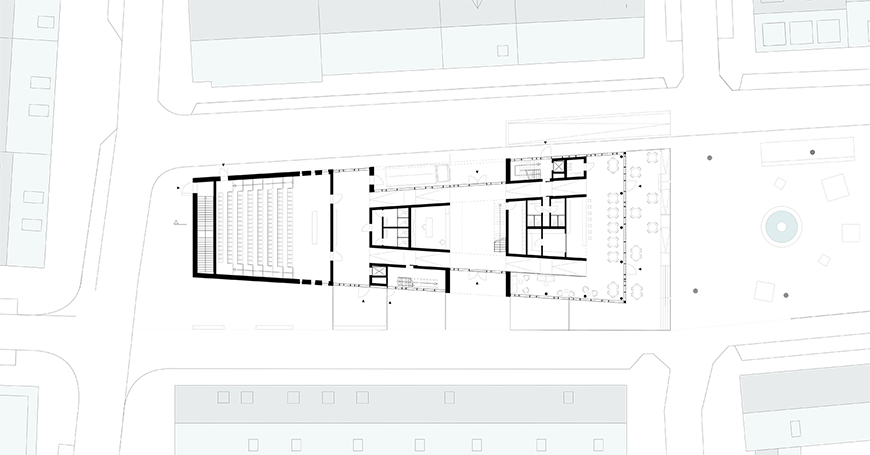
The subject of the design was a city archive. To be more precise, a new building for the city archive of the Documenta city of Kassel. Currently, the city archive is located in an old stables in the inner city of Kassel. However, due to upcoming renovation work, it will have to move to new accommodation in the near future. A municipal site close to the Marstall in the inner city was found as a building site for the new accommodation. it is the so-called Entenanger, a long square with a slope of around 7 m surrounded by 1950s residential buildings. Currently, half of the square is occupied by a parking lot and the other half by a playground surrounded by trees, which has little quality and attracts more drug dealers than children. In addition to the necessary rooms for the archives, i.e. the assets of the city of Kassel that are worthy of protection, such as political documents, art and photos, the space programme also included workrooms and offices for the staff, a lecture and meeting room, a foyer and a café.    

IMG_20210328_124928-Kopie
IMG_20210328_142107-Kopie
IMG_20210328_142052-Kopie
IMG_20210328_125125-Kopie
IMG_20210328_142101_1-Kopie
Kassel_A0_10000

concept

The construction is a massive reinforced concrete structure in order to be able to carry the high loads of the archive. In the closed façade areas, ventilated façade panels made of shell limestone and glass fibre concrete are installed.  This contrasts with the window areas, which are realised with an aluminium mullion and transom façade. A photovoltaic system with east-west orientation in combination with a green roof is installed on the large flat roof area. The green roof substrate serves as a weighting for the solar modules and at the same time provides natural cooling, which increases the efficiency of the system.  The Kassel archive is planning an increase in inventory of approx. 400 sqm by 2050, which was taken into account in the space allocation plan. In order to allow for further expansion thereafter, including in the digital area, which is expected to grow rapidly, the underground car park was designed in such a way that it could be converted into further archive areas without major effort. 

PIKTO HANG

integration into the topologie

Pikto Luftraum

airspace in the center above the foyer

Pikto Grün

common rooms to the green

construction

The construction is a massive reinforced concrete structure in order to be able to carry the high loads of the archive. In the closed façade areas, ventilated façade panels made of shell limestone and glass fibre concrete are installed.  This contrasts with the window areas, which are realised with an aluminium mullion and transom façade. A photovoltaic system with east-west orientation in combination with a green roof is installed on the large flat roof area. The green roof substrate serves as a weighting for the solar modules and at the same time provides natural cooling, which increases the efficiency of the system.  The Kassel archive is planning an increase in inventory of approx. 400 sqm by 2050, which was taken into account in the space allocation plan. In order to allow for further expansion thereafter, including in the digital area, which is expected to grow rapidly, the underground car park was designed in such a way that it could be converted into further archive areas without major effort. 

20210629_150759

material concept

presentation

08.45_Samstag_Falk_WandfliesSmooth_BA16.6.21-1
08.45_Samstag_Falk_WandfliesSmooth_BA16.6.21-2
08.45_Samstag_Falk_WandfliesSmooth_BA16.6.21-3
SoSe21_Samstag_Falk_Bachelorthesis_Bild5-Kopie-2
Back to top Arrow